Piła, Zamość

Mieszkanie na sprzedaż

Opis nieruchomości

NOWOCZESNY i gotowy do zamieszkania
apartament 3-pokojowy z ogródkiem

Na sprzedaż przestronne i komfortowe mieszkanie o pow. 62,83m2
zlokalizowane na parterze nowoczesnego bloku z 2023 roku
przy ul. Rodła w Pile

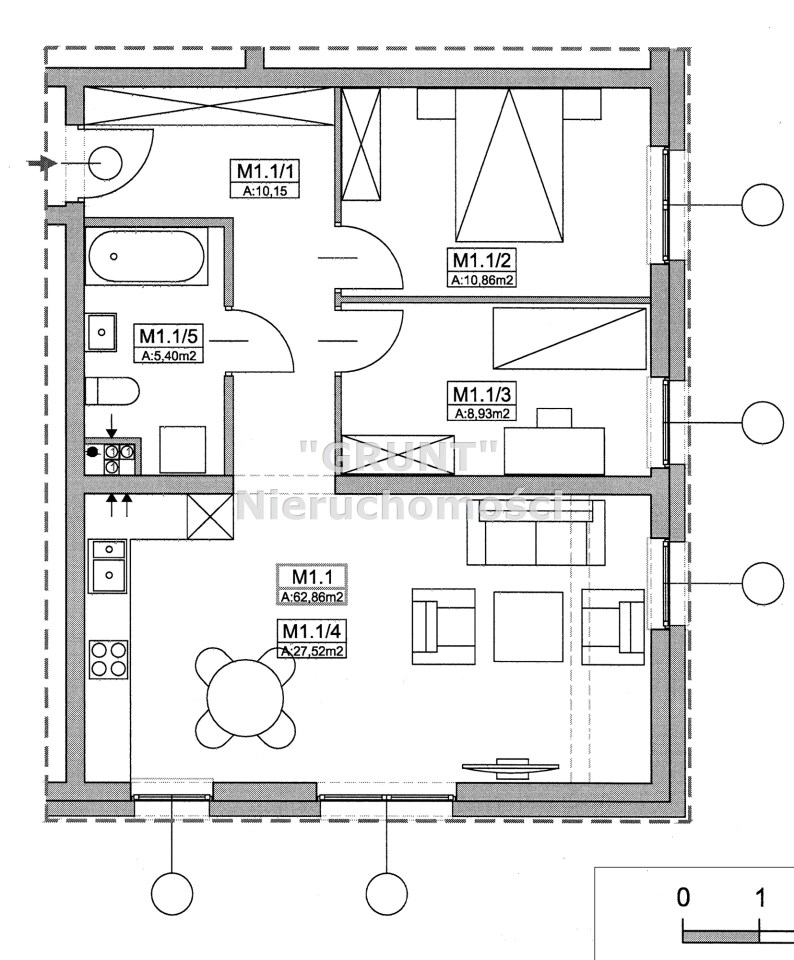
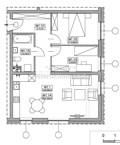
Układ pomieszczeń 
- jasny salon połączony z kuchnią o łącznej pow. 27,52m2, z bezpośrednim wyjściem na taras i ogródek o pow. 48m2
- dwie ustawne sypialnie (pow.  10,86; 8,93m2)
- elegancka łazienka (pow. 5,40m2) z wanną
- przestronny przedpokój z funkcjonalnymi szafami.

Do mieszkania przynależy pomieszczenie gospodarcze, idealne na przechowywanie roweru, hulajnogi, itp.

Czynsz: 490,- z ogrzewaniem
+ opłata za wywóz nieczystości stałych, ciepłą i zimną wodę od osoby około 160,-

Umowa tylko z ENEA i TV, Internet. Brak gazu w bloku.

Mieszkanie zostało starannie wykończone- gotowe do zamieszkania, bez potrzeby dodatkowych nakładów finansowych.

Jasne wnętrza, funkcjonalny układ i dodatkowa przestrzeń na świeżym powietrzu sprawiają, że to idealna propozycja dla rodzin, par lub osób szukających komfortu w nowym budownictwie



Blisko paczkomat, sklepy, Aquapark, dobra i szybka komunikacja z centrum miasta.

Zapraszam do kontaktu telefonicznego, odpowiem na pytania,
ustalimy termin prezentacji.

Nota prawna

Opis oferty zawarty na stronie internetowej sporządzany jest na podstawie oględzin nieruchomości oraz informacji uzyskanych od właściciela, może podlegać aktualizacji i nie stanowi oferty określonej w art. 66 i następnych K.C.

Szczegóły oferty

Symbol oferty GRU-MS-7981
Powierzchnia 62,83 m²
Powierzchnia użytkowa 62,83 m²
Liczba pokoi 3
Piętro parter
Rodzaj budynku blok
Liczba pięter w budynku 4
Stan lokalu do wprowadzenia
Stan prawny Odrębna własność lokalu
Mies. czynsz admin. 490 PLN
Okna PCV
Liczba tarasów 1
Rok budowy 2023
Winda tak
Liczba wind 1
Tarasy taras duży
Usytuowanie narożne
Klucze tak

Lokalizacja

Kalkulator kredytowy

PLN
%
Wysokość raty

Kalkulator kosztów

PLN
PLN
PLN
PLN
PLN
PLN
%
PLN
Podatek od czynności cywilno-prawnych
Taksa notarialna (opłata notarialna)
VAT od taksy notarialnej (opłaty notarialnej)
Wniosek do WKW
VAT od wniosku do WKW
Prowizja agencji nieruchomości
VAT od prowizji agencji nieruchomości
Wypisy aktu notarialnego - około
RAZEM (cena + opłaty)

Podobne oferty

mieszkanie na sprzedaż - Piła

mieszkanie na sprzedaż

Piła
3 pokoje 72,21 m2 7 900,00 zł/m2
bez prowizji
mieszkanie na sprzedaż - Piła

mieszkanie na sprzedaż

Piła
3 pokoje 73,00 m2 6 520,55 zł/m2
bez prowizji
mieszkanie na sprzedaż - Piła, Zamość

mieszkanie na sprzedaż

Piła, Zamość
2 pokoje 41,26 m2 12 500,00 zł/m2
mieszkanie na sprzedaż - Piła, Górne

mieszkanie na sprzedaż

Piła, Górne
3 pokoje 76,00 m2 8 881,58 zł/m2

Napisz do nas

Proszę wypełnić to pole
Proszę wypełnić to pole
Proszę wypełnić to pole
Proszę wypełnić to pole
Trwa wysyłanie...

Ta strona wykorzystuje pliki cookies w celach statystycznych oraz w celu dostosowania naszych serwisów do indywidualnych potrzeb klientów. Zmiany ustawień dotyczących plików cookie można dokonać w dowolnej chwili modyfikując ustawienia przeglądarki. Korzystanie z tej strony bez zmian ustawień dotyczących cookies oznacza, że będą one zapisane w pamięci urządzenia.

rozumiem